【千代田区】秋葉原_アキバ徒歩圏の即戦力フルセットアップオフィス
問い合わせ番号:33347
最寄り駅-
新宿線「岩本町」2分
JR線・日比谷線・TX線「秋葉原」5分
JR線・銀座線「神田」10分
日比谷線「小伝馬町」12分
- 入居時期
- 2025年12月予定
賃料1,000,000円
契約面積- 約28坪(92.56m²)
敷金・保証金- 0ヶ月
礼金- 無し
償却等- 償却:無し / 更新料:無し
※保証会社指定
※清掃契約指定
所在地- 千代田区神田岩本町1
構造規模-
鉄骨造
地上9階
所在階- 6階


















コメント
★ 秋葉原駅徒歩圏、山手線も使える便利な交通アクセス
★ 飲食店も豊富で商業施設や電気街の買い出しにも便利なエリア
★ リニューアル実施済みで求人や来訪者にも好印象
★ セキュリティが担保された1フロア1テナント
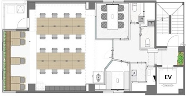
★ 什器付きのフルセットアップ仕様、16席設置
★ 受付、会議室×2(6名用・4名用)、ラウンジスペース
テレカンブース、男女別トイレ、Wi-Fi完備
★ 敷金礼金0、原状回復義務無し(クリニーング費用のみ負担)
移転の時間・手間・コストを抑えスピーディな移転が可能。
便利な交通アクセスですぐに業務開始が出来る即戦力区画、
秋葉原、岩本町エリアのフルセットアップオフィスです。