最寄り駅-
日比谷線「小伝馬町」4分
新宿線「岩本町」5分
JR線・TX線・日比谷線「秋葉原」7分
JR線・銀座線「神田」8分
新宿線「馬喰横山」12分
浅草線「東日本橋」12分
- 入居時期
- 2026年6月予定
賃料1,222,320円
契約面積- 約50坪(165.29m²)
敷金・保証金- 相談
礼金- 無し
償却等- 償却:無し / 更新料:無し
※保証会社指定
※清掃契約指定
所在地- 千代田区岩本町2
構造規模-
鉄筋鉄骨コンクリート造
地下1階 地上9階
所在階- 1階
1,222,320円

★ 神田駅、秋葉原駅をはじめ複数路線が利用可能
★ 共用部はリノベーション済みで来訪者にも好印象
★ エントランスは上品なコントラストデザイン
★ セキュリティが担保された1フロア1テナント
★ アースカラーベースのナチュラルかつ高級感のある内装テイスト
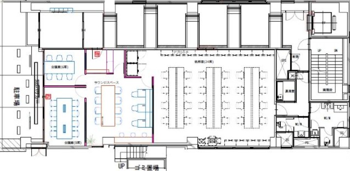
★ 受付、会議室×2(8名用・6名用)、男女別トイレ
テレカンブース×2、ラウンジスペース
移転の時間・手間・コストを抑えスピーディな移転が可能。
充実した機能性とアースカラーのおしゃれな内装空間が魅力、
岩本町、秋葉原エリアのデザイナーズセットアップオフィスです。
コメント
★ 神田駅、秋葉原駅をはじめ複数路線が利用可能
★ 共用部はリノベーション済みで来訪者にも好印象
★ エントランスは上品なコントラストデザイン
★ セキュリティが担保された1フロア1テナント
★ アースカラーベースのナチュラルかつ高級感のある内装テイスト
★ 受付、会議室×2(8名用・6名用)、男女別トイレ
テレカンブース×2、ラウンジスペース
移転の時間・手間・コストを抑えスピーディな移転が可能。
充実した機能性とアースカラーのおしゃれな内装空間が魅力、
岩本町、秋葉原エリアのデザイナーズセットアップオフィスです。