最寄り駅-
JR京葉線・日比谷線「八丁堀」1分
浅草線「宝町」5分
有楽町線「新富町」7分
東西線・日比谷線「茅場町」8分
銀座線「京橋」9分
JR線・丸の内線「東京」17分
- 入居時期
- 2026年4月予定
賃料900,000円
契約面積- 約34坪(112.40m²)
敷金・保証金- 5ヶ月
礼金- 無し
償却等- 償却:無し / 更新料:1ヶ月
所在地- 中央区八丁堀4
構造規模-
鉄筋鉄骨コンクリート造
地下1階 地上10階
所在階- 6階
900,000円

★ 徒歩10分圏内に5駅6路線の魅力的なマルチアクセス
★ 駅1分の利便性、銀座・日本橋・東京エリアも徒歩圏内
★ 外観エントランス等、大規模リニューアル実施済み
★ セキュリティが担保された1フロア1テナント
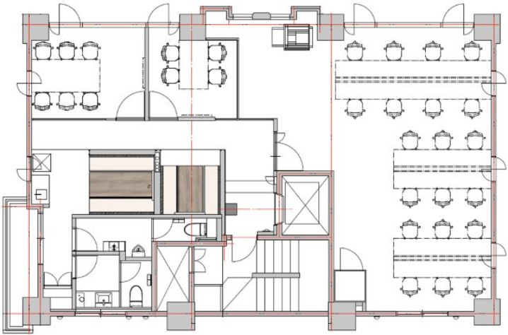
★ 什器付きのフルセットアップ仕様(20席設置予定)
★ 大きな窓面とスケルトン天井で明るく開放的な室内
★ 受付、会議室2室(6名用、4名用)、ファミレスブース×2
男女別トイレ完備
移転の時間・手間・コストを抑えスピーディな移転が可能。
採用と営業、両方に効く駅1分の立地が魅力、
八丁堀、宝町、新富町エリアのフルセットアップオフィスです。
コメント
★ 徒歩10分圏内に5駅6路線の魅力的なマルチアクセス
★ 駅1分の利便性、銀座・日本橋・東京エリアも徒歩圏内
★ 外観エントランス等、大規模リニューアル実施済み
★ セキュリティが担保された1フロア1テナント
★ 什器付きのフルセットアップ仕様(20席設置予定)
★ 大きな窓面とスケルトン天井で明るく開放的な室内
★ 受付、会議室2室(6名用、4名用)、ファミレスブース×2
男女別トイレ完備
移転の時間・手間・コストを抑えスピーディな移転が可能。
採用と営業、両方に効く駅1分の立地が魅力、
八丁堀、宝町、新富町エリアのフルセットアップオフィスです。