• ~25坪
  • 25坪~50坪
  • 50坪~75坪
  • 75坪~100坪
  • 100坪以上

【港区】品川_ワークラウンジ付き、ネット無料の築浅SOHOデザイナーズオフィス

問い合わせ番号:34291

1 / 14 品川_駅4分の好立地、SOHO可能な築浅デザイナーズオフィス

2 / 14 清潔感のある室内

3 / 14 10名程度収容が可能

4 / 14 貸し会議室(月20時間/11,000円)

5 / 14 キッチン

6 / 14 バスルーム

7 / 14 洗面台

8 / 14 トイレ

9 / 14 収納スペース

10 / 14 バルコニー

11 / 14 収納棚も設置済で個性的な長廊下

12 / 14 宅配ボックス完備

13 / 14 新幹線や空港ユーザーへもオススメ

14 / 14 スタイリッシュな外観が特徴的

コメント

★ ターミナル品川駅まで4分の便利な立地
★ 新幹線や空港ユーザーにもお勧めのエリア
★ 2024年6月竣工のおしゃれな外観が特徴
★ 主要採光南向きで、専有部とは別にワークラウンジ完備
★ SOHO可能、インターネット無料

 

SOHO可、品川駅徒歩圏で便利な交通アクセスが魅力、
品川エリアの築浅デザイナーズオフィスです。

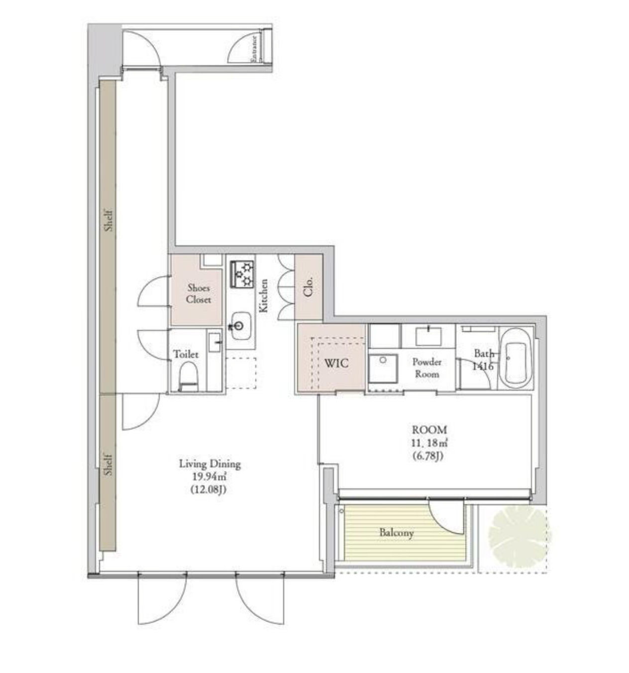
図面

最寄り駅
JR各線・浅草線・京急本線「品川」4分
チェックポイント
#会議室付き#駅近#新築、築浅#バルコニー付き#デザイン重視#初期安#SOHO#★オススメ
入居時期
即入居可能
賃料

510,000

契約面積
約18坪(59.50m²)
敷金・保証金
2ヶ月
礼金
無し
償却等
償却:無し / 更新料:1ヶ月
※貸し会議室
(月20時間/11,000円)
所在地
港区高輪4
構造規模
鉄筋コンクリート造
地下2階 地上4階
所在階
3階
最寄り駅
JR各線・浅草線・京急本線「品川」4分
チェックポイント
#会議室付き#駅近#新築、築浅#バルコニー付き#デザイン重視#初期安#SOHO#★オススメ
入居時期/
即入居可能
賃料

510,000

契約面積
約18坪(59.50m²)
敷金・保証金
2ヶ月
礼金
無し
償却等
償却:無し / 更新料:1ヶ月
※貸し会議室
(月20時間/11,000円)
所在地
港区高輪4
構造規模
鉄筋コンクリート造
地下2階 地上4階
所在階
3階
駅・主要な路線から探す駅・路線一覧を閉じる
印刷する際は「横向き」を選択して印刷してください。
縦に印刷すると情報が正しく印刷されない場合がございます。 印刷する
お電話でのご相談がご希望の場合は以下の電話番号までご連絡の上で
「物件のお問い合わせ番号」をお伝えください。
現在の物件の問い合わせ番号:34291
03-4400-0767

東京の居抜きオフィス、デザインオフィスの賃貸情報 Designers Tokyo

【港区】品川_ワークラウンジ付き、ネット無料の築浅SOHOデザイナーズオフィス

問い合わせ番号:34291

品川_駅4分の好立地、SOHO可能な築浅デザイナーズオフィス

清潔感のある室内

10名程度収容が可能

貸し会議室(月20時間/11,000円)

キッチン

バスルーム

洗面台

トイレ

収納スペース

バルコニー

収納棚も設置済で個性的な長廊下

宅配ボックス完備

新幹線や空港ユーザーへもオススメ

スタイリッシュな外観が特徴的

建物画像
建物画像
建物画像
最寄り駅
JR各線・浅草線・京急本線「品川」4分
チェックポイント
#会議室付き#駅近#新築、築浅#バルコニー付き#デザイン重視#初期安#SOHO#★オススメ
入居時期/
即入居可能
賃料

510,000

契約面積
約18坪(59.50m²)
敷金・保証金
2ヶ月
礼金
無し
償却等
償却:無し / 更新料:1ヶ月
※貸し会議室
(月20時間/11,000円)
所在地
港区高輪4
構造規模
鉄筋コンクリート造
地下2階 地上4階
所在階
3階

お気に入り

×

条件で物件を探す

エリア

広さ

こだわり

キャンセル