最寄り駅-
日比谷線「虎ノ門ヒルズ」5分
三田線「御成門」6分
銀座線・日比谷線「虎ノ門」8分
JR線・銀座線・浅草線・ゆりかもめ「新橋」13分
大江戸線「汐留」13分
- 入居時期
- 即入居可能
賃料1,077,230円
共益費- 251,820円
契約面積- 約69坪(228.10m²)
敷金・保証金- 6ヶ月
礼金- 無し
償却等- 償却:無し / 更新料:無し
※保証会社指定
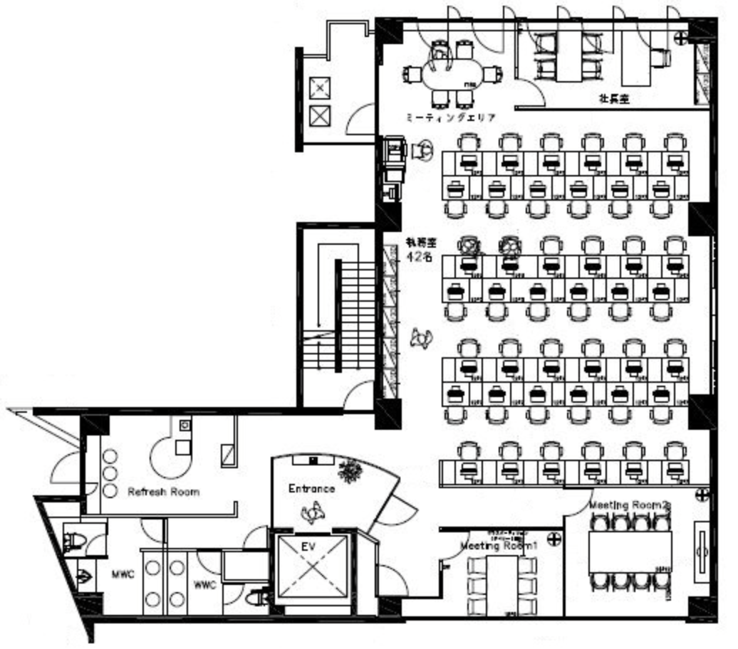
※図面はイメージレイアウト
所在地- 港区西新橋3
構造規模-
鉄筋鉄骨コンクリート造
地上9階
所在階- 7階


























コメント
★ 仕事運・金運のパワースポット、愛宕神社近く
★ 再開発が進む虎ノ門エリアの最上階オフィス区画
★ ウッドデッキ仕様、入居テナント専用の屋上テラス付き
★ セキュリティが担保された1フロア1テナント
★ EVホールにはガラスパーテーションの造作付き
★ 明るい2面採光、無柱のOAフロアでレイアウトもしやすい間取り
新たなビジネス街への進化を遂げる虎ノ門エリア、
ガラスパーテーションの造作付で入居時のコスト軽減が可能、
虎ノ門ヒルズ、神谷町、御成門エリアの最上階区画のオフィスです。