• ~25坪
  • 25坪~50坪
  • 50坪~75坪
  • 75坪~100坪
  • 100坪以上

【港区】新橋_敷金ゼロ+賃料長期免除キャンペーン中、共用ラウンジ付きオフィス

問い合わせ番号:35635

1 / 13 新橋_長期賃料免除キャンペーン中、共用ラウンジ付きオフィス

2 / 13 敷金礼金ゼロで初期安_執務室

3 / 13 1フロア1テナントで安心のセキュリティ_執務室

4 / 13 2面彩光で明るい室内_執務室

5 / 13 給湯スペース_2026年2月リニューアル済

6 / 13 男女別トイレ_2026年2月リニューアル済

7 / 13 受付

8 / 13 EVホール

9 / 13 来客対応や採用、休憩にも最適_1階共用ラウンジ

10 / 13 ドリンクストッカー完備

11 / 13 最上階に喫煙スペース有り

12 / 13 エントランス

13 / 13 外観

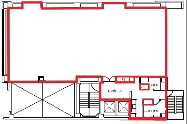
図面

最寄り駅
JR線・銀座線・浅草線「新橋」6分
三田線「御成門」6分
大江戸線「大門」7分
JR線・東京モノレール「浜松町」12分
日比谷線「虎ノ門ヒルズ」17分
チェックポイント
#駅近#敷金0#大型、ハイグレード#共用ラウンジ付き#リノベ済み#★オススメ
入居時期
即入居可能
賃料

1,775,370

契約面積
約77坪(254.55m²)
敷金・保証金
0ヶ月
礼金
無し
償却等
償却:無 / 更新料:無
※保証会社指定
所在地
港区新橋6
構造規模
鉄筋鉄骨コンクリート造
地下2階 地上8階
所在階
3階
最寄り駅
JR線・銀座線・浅草線「新橋」6分
三田線「御成門」6分
大江戸線「大門」7分
JR線・東京モノレール「浜松町」12分
日比谷線「虎ノ門ヒルズ」17分
チェックポイント
#駅近#敷金0#大型、ハイグレード#共用ラウンジ付き#リノベ済み#★オススメ
入居時期/
即入居可能
賃料

1,775,370

契約面積
約77坪(254.55m²)
敷金・保証金
0ヶ月
礼金
無し
償却等
償却:無 / 更新料:無
※保証会社指定
所在地
港区新橋6
構造規模
鉄筋鉄骨コンクリート造
地下2階 地上8階
所在階
3階
駅・主要な路線から探す駅・路線一覧を閉じる
印刷する際は「横向き」を選択して印刷してください。
縦に印刷すると情報が正しく印刷されない場合がございます。 印刷する
お電話でのご相談がご希望の場合は以下の電話番号までご連絡の上で
「物件のお問い合わせ番号」をお伝えください。
現在の物件の問い合わせ番号:35635
03-4400-0767

東京の居抜きオフィス、デザインオフィスの賃貸情報 Designers Tokyo

【港区】新橋_敷金ゼロ+賃料長期免除キャンペーン中、共用ラウンジ付きオフィス

問い合わせ番号:35635

新橋_長期賃料免除キャンペーン中、共用ラウンジ付きオフィス

敷金礼金ゼロで初期安_執務室

1フロア1テナントで安心のセキュリティ_執務室

2面彩光で明るい室内_執務室

給湯スペース_2026年2月リニューアル済

男女別トイレ_2026年2月リニューアル済

受付

EVホール

来客対応や採用、休憩にも最適_1階共用ラウンジ

ドリンクストッカー完備

最上階に喫煙スペース有り

エントランス

外観

建物画像
建物画像
建物画像
最寄り駅
JR線・銀座線・浅草線「新橋」6分
三田線「御成門」6分
大江戸線「大門」7分
JR線・東京モノレール「浜松町」12分
日比谷線「虎ノ門ヒルズ」17分
チェックポイント
#駅近#敷金0#大型、ハイグレード#共用ラウンジ付き#リノベ済み#★オススメ
入居時期/
即入居可能
賃料

1,775,370

契約面積
約77坪(254.55m²)
敷金・保証金
0ヶ月
礼金
無し
償却等
償却:無 / 更新料:無
※保証会社指定
所在地
港区新橋6
構造規模
鉄筋鉄骨コンクリート造
地下2階 地上8階
所在階
3階

お気に入り

×

条件で物件を探す

エリア

広さ

こだわり

キャンセル