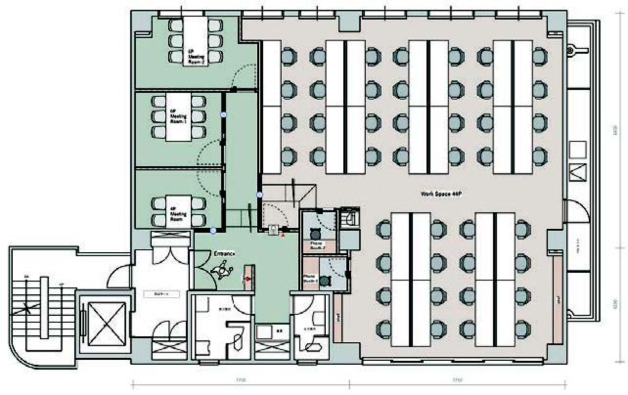
【渋谷区】明治神宮前_敷金ゼロ可能、会議室3室完備のフルセットアップオフィス
問い合わせ番号:34543
最寄り駅-
千代田線・副都心線「明治神宮前」6分
JR線・半蔵門線「原宿」8分
副都心線「北参道」11分
半蔵門線「表参道」12分
銀座線「外苑前」14分
- 入居時期
- 即入居可能
賃料- ASK
契約面積- 約57坪(188.43m²)
敷金・保証金- 6ヶ月
礼金- 無し
償却等- 償却:無し / 更新料:無し
所在地- 渋谷区神宮前3
構造規模-
鉄筋鉄骨コンクリート造
地上8階
所在階- 3階




















