デザイナーズ、セットアップ、居抜き、敷金0、賃貸オフィス事務所
運営会社
プライバシーポリシー
利用規約
10
1 / 7 表参道_ケヤキ並木ビューが魅力のデザイナーズオフィス
2 / 7 20~30名程度収容可能_執務室
3 / 7 窓も大きく明るい室内_執務室
4 / 7 1フロア1テナントで安心のセキュリティ_執務室
5 / 7 天井が高く開放感抜群_執務室
6 / 7 男女別トイレ
7 / 7 外観_1階入居中テナントは高級時計店
★ 表参道沿い、1階高級時計店の視認性の良いビル ★ セキュリティが担保された1フロア1テナント ★ 2019年全館リフォーム実施 ★ 20-30名程度収容可能 ★ 男女別トイレ完備
表参道沿いで企業ブランディングを高める区画、 表参道、明治神宮前エリアのデザイナーズオフィスです。
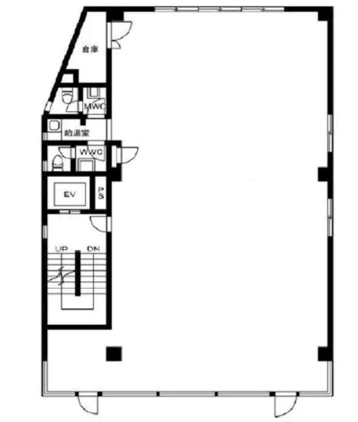
図面
1,491,000円
渋谷区恵比寿1
約58坪〔191.74m²〕
ASK
渋谷区神山町
約54坪〔178.51m²〕
NEW
千代田区神田司町2
約56坪〔185.12m²〕
1,469,000 円
目黒区上目黒3
約57坪〔188.43m²〕
2,252,640 円
エリアで選ぶ
広さで選ぶ
特徴で選ぶ
東京メトロ
JR
都営地下鉄
表参道_ケヤキ並木ビューが魅力のデザイナーズオフィス
20~30名程度収容可能_執務室
窓も大きく明るい室内_執務室
1フロア1テナントで安心のセキュリティ_執務室
天井が高く開放感抜群_執務室
男女別トイレ
外観_1階入居中テナントは高級時計店
お気に入り
条件で物件を探す
エリア
広さ
こだわり
コメント
★ 表参道沿い、1階高級時計店の視認性の良いビル
★ セキュリティが担保された1フロア1テナント
★ 2019年全館リフォーム実施
★ 20-30名程度収容可能
★ 男女別トイレ完備
表参道沿いで企業ブランディングを高める区画、
表参道、明治神宮前エリアのデザイナーズオフィスです。