【新宿区】新宿三丁目_駅直結、デザイン性の高い家具付きシェアオフィス(キャンペーン中)
問い合わせ番号:33598
最寄り駅-
丸ノ内線・副都心線・新宿線「新宿三丁目」直結
JR線他「新宿」5分
丸ノ内線「新宿御苑前」8分
- 入居時期
- 即入居可能
賃料390,000円
共益費- 40,000円
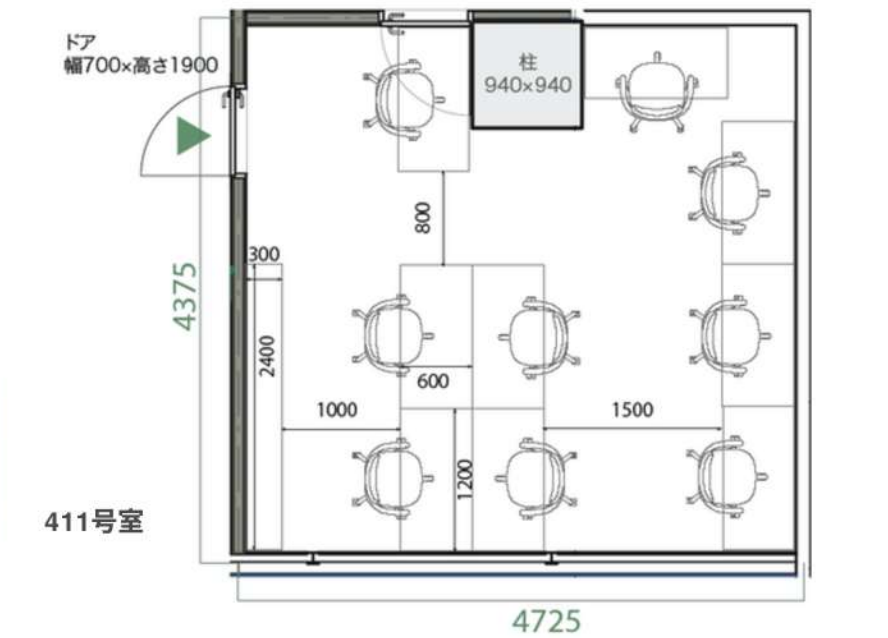
契約面積- 約6.25坪(20.66m²)
敷金・保証金- 0ヶ月
礼金- 無し
償却等- 償却:無し / 再契約料:1ヶ月
水光熱費は共益費に含む
所在地- 新宿区新宿3
構造規模-
鉄筋鉄骨コンクリート造
地下2階 地上8階
























コメント
★「新宿三丁目」駅直結の好立地
★複数路線利用可能、都心の移動が便利な新宿駅も徒歩圏
★デザイン性の高い上品な内装で求人や来訪者にも好印象
★共用ラウンジ、ミーティングスペース有り
★401区画、賃料27.0万円+共益費3.0万円(税別)
★411区画、賃貸条件参照
→他区画に空きがあるケースもありますので、気軽にお問い合わせください。
移転の時間・手間・コストを抑え即時稼働可能。
家具付きで新宿駅からも地下道を通ってアクセスが可能、
新宿三丁目、新宿エリアのデザイナーズオフィスです。