最寄り駅-
京王線「初台」7分
大江戸線「都庁前」9分
大江戸線・新宿線「新宿」10分
JR線・京王線他「新宿」13分
- 入居時期
- 2026年4月予定
賃料775,310円
契約面積- 約25坪(82.64m²)
敷金・保証金- 0ヶ月
礼金- 無し
償却等- 償却:無し / 更新料:無し
※保証会社指定
※清掃会社指定
所在地- 新宿区西新宿3
構造規模-
鉄骨造
地上9階
所在階- 4階
775,310円

★ ターミナル新宿駅徒歩圏、バス便も豊富
★ リニューアル実施済みで求人や来訪者にも好印象
★ セキュリティが担保された1フロア1テナント
★ 什器付きのフルセットアップ仕様
★ ホテルライクで上質感と温かみが両立したデザイン
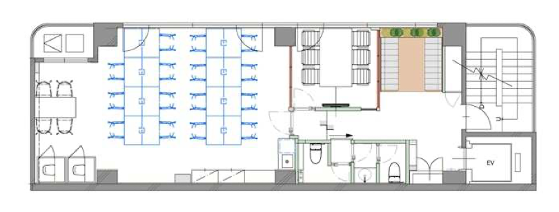
★ 受付、会議室(6名用)、MTGスペース
テレカンブース×2、男女別トイレ
★ 敷金礼金0、原状回復無し
移転の時間・手間・コストを抑えスピーディな移転が可能。
リクルートに強い、ホテルライクの上質でお洒落な内装デザイン、
新宿、初台、都庁前エリアのフルセットアップオフィスです。
コメント
★ ターミナル新宿駅徒歩圏、バス便も豊富
★ リニューアル実施済みで求人や来訪者にも好印象
★ セキュリティが担保された1フロア1テナント
★ 什器付きのフルセットアップ仕様
★ ホテルライクで上質感と温かみが両立したデザイン
★ 受付、会議室(6名用)、MTGスペース
テレカンブース×2、男女別トイレ
★ 敷金礼金0、原状回復無し
移転の時間・手間・コストを抑えスピーディな移転が可能。
リクルートに強い、ホテルライクの上質でお洒落な内装デザイン、
新宿、初台、都庁前エリアのフルセットアップオフィスです。