【新宿区】新宿三丁目_北欧モダンのおしゃれなデザイン、会議室2室付きセットアップオフィス
問い合わせ番号:34367
最寄り駅-
丸ノ内線・副都心線・新宿線「新宿三丁目」4分
大江戸線「東新宿」8分
JR線他「新宿」12分
- 入居時期
- 相談
賃料1,144,000円
契約面積- 約45坪(148.76m²)
敷金・保証金- 6ヶ月
礼金- 無し
償却等- 償却:無し / 更新料:無し
※保証会社指定
所在地- 新宿区新宿5
構造規模-
鉄筋コンクリート造
地上7階
所在階- 4階
1,144,000円

★ 新宿徒歩圏、新宿三丁目駅4分の便利な立地
★ エントランス等、共用部リニューアル実施
★ セキュリティが担保された1フロア1テナント
★ スカンジナビアンモダンの暖かみと機能性を兼ね備えたデザイン
★ 執務室什器を自由に選べるハーフセットアップ仕様
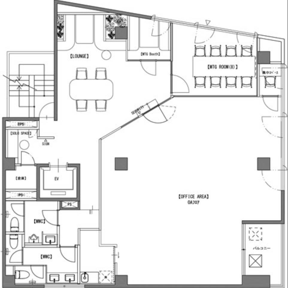
★ 受付、会議室×2(8名用、6名用)、ラウンジスペース
ファミレスブース、男女別トイレ完備
移転の時間・手間・コストを抑えスピーディな移転が可能。
新宿駅徒歩圏のフットワークの良い立地、
新宿三丁目、新宿エリアのセットアップオフィスです。
コメント
★ 新宿徒歩圏、新宿三丁目駅4分の便利な立地
★ エントランス等、共用部リニューアル実施
★ セキュリティが担保された1フロア1テナント
★ スカンジナビアンモダンの暖かみと機能性を兼ね備えたデザイン
★ 執務室什器を自由に選べるハーフセットアップ仕様
★ 受付、会議室×2(8名用、6名用)、ラウンジスペース
ファミレスブース、男女別トイレ完備
移転の時間・手間・コストを抑えスピーディな移転が可能。
新宿駅徒歩圏のフットワークの良い立地、
新宿三丁目、新宿エリアのセットアップオフィスです。