最寄り駅-
半蔵門線「水天宮前」3分
東西線・日比谷線「茅場町」5分
日比谷線・浅草線「人形町」5分
東西線・銀座線・浅草線「日本橋」9分
半蔵門線・銀座線「三越前」11分
新宿線「浜町」13分
- 入居時期
- 2025年12月予定
賃料- ASK
契約面積- 約52坪(171.90m²)
敷金・保証金- 6ヶ月
礼金- 無し
償却等- 更新料:無し / 償却:無し
※保証会社指定
所在地- 中央区日本橋蛎殻町1
構造規模-
鉄筋鉄骨コンクリート造
地下1階 地上9階
所在階- 9階

★水天宮前駅3分、茅場町駅5分など複数路線が利用可能
→新幹線(東京駅)や空港(成田・羽田)ユーザーにもオススメ
★共用部リニューアル実施済み
→外観は落ち着きのあるホテルライクなファサード
★敷金0相談可能で移転費用の大幅削減が可能
★スケルトン天井の開放感と明るい室内が魅力
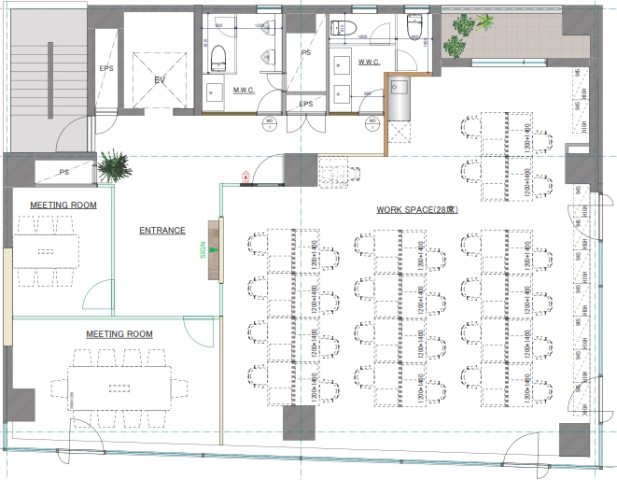
★受付、会議室×2(8名用・6名用)、男女別トイレ完備
→自由な什器で即稼働が可能なセットアップオフィス
移転の時間・手間・コストを抑えスピーディな移転が可能。
敷金0相談可能、会議室2室付きで開放感のある室内が魅力、
水天宮前・茅場町エリアのセットアップオフィスです。
コメント
★水天宮前駅3分、茅場町駅5分など複数路線が利用可能
→新幹線(東京駅)や空港(成田・羽田)ユーザーにもオススメ
★共用部リニューアル実施済み
→外観は落ち着きのあるホテルライクなファサード
★敷金0相談可能で移転費用の大幅削減が可能
★スケルトン天井の開放感と明るい室内が魅力
★受付、会議室×2(8名用・6名用)、男女別トイレ完備
→自由な什器で即稼働が可能なセットアップオフィス
移転の時間・手間・コストを抑えスピーディな移転が可能。
敷金0相談可能、会議室2室付きで開放感のある室内が魅力、
水天宮前・茅場町エリアのセットアップオフィスです。