最寄り駅-
日比谷線「人形町」5分
新宿線「馬喰横山」/ 浅草線「東日本橋」5分
総武本線 「馬喰町」8分
半蔵門線「水天宮前」10分
総武線「浅草橋」15分
- 入居時期
- 2026年1月予定
賃料1,286,850円
契約面積- 約55坪(181.82m²)
敷金・保証金- 0ヶ月
礼金- 無し
償却等- 更新料:無し / 償却:無し
※保証会社指定
所在地- 中央区日本橋富沢町
構造規模-
鉄筋鉄骨コンクリート造
地上9階
所在階- 6階
1,286,850円

★ 落ち着いた周辺環境で複数路線利用可能な好立地
★ 新幹線(東京駅)や羽田、成田の空港ユーザーにもオススメ
★ 共用部リニューアル実施済みで求人や来訪者にも好印象
★ 角地で視認性も良く、二面採光で日当たりも良好
★ セキュリティが担保された1フロア1テナント
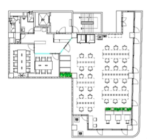
★ 執務室什器を自由に選べるハーフセットアップ仕様
★ 受付、会議室×2(8名用、6名用)、テレカンブース×2
ファミレスブース、男女別トイレ
★ 敷金0可能(保証会社指定)で移転コスト大幅削減可能
移転の時間・手間・コストを抑えて即時稼働可能。
美しく整った空間構成にマルチアクセスの交通網が魅力
人形町、馬喰横山エリアのセットアップオフィスです。
コメント
★ 落ち着いた周辺環境で複数路線利用可能な好立地
★ 新幹線(東京駅)や羽田、成田の空港ユーザーにもオススメ
★ 共用部リニューアル実施済みで求人や来訪者にも好印象
★ 角地で視認性も良く、二面採光で日当たりも良好
★ セキュリティが担保された1フロア1テナント
★ 執務室什器を自由に選べるハーフセットアップ仕様
★ 受付、会議室×2(8名用、6名用)、テレカンブース×2
ファミレスブース、男女別トイレ
★ 敷金0可能(保証会社指定)で移転コスト大幅削減可能
移転の時間・手間・コストを抑えて即時稼働可能。
美しく整った空間構成にマルチアクセスの交通網が魅力
人形町、馬喰横山エリアのセットアップオフィスです。